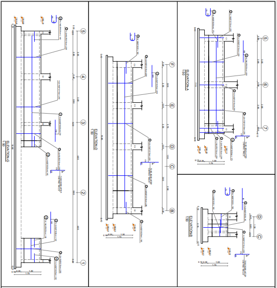
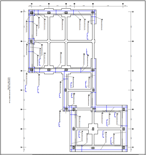
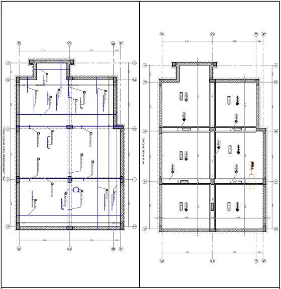
Rebar Detailing Shopdrawings